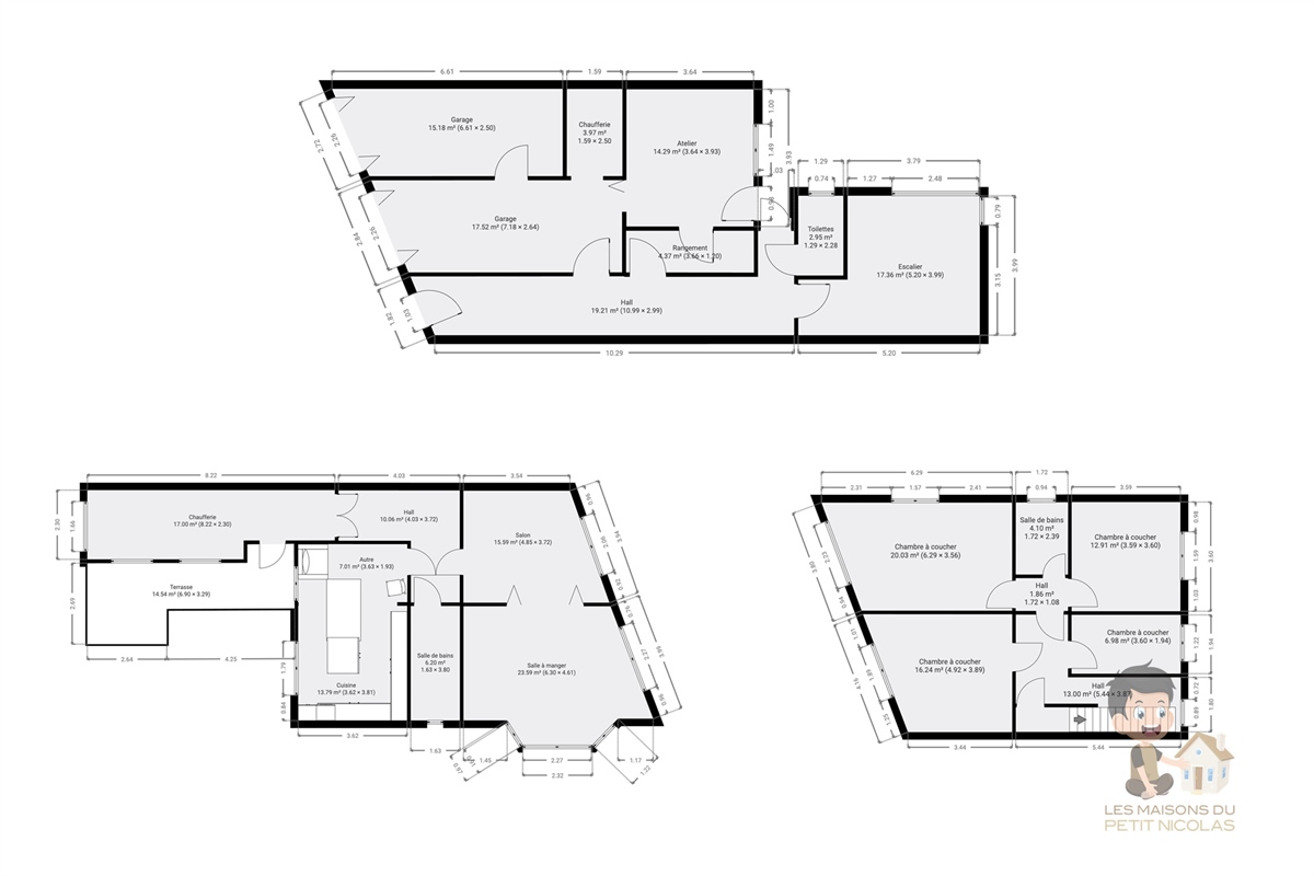
Spacieuse maison familiale rénovée – 277 m² habitables + 110m2 de grenier aménageable déjà isolé
PEB B - Electricité conforme !

Découvrez cette agréable maison entièrement rénovée, idéale pour une famille à la recherche d’espace et de confort.

Les points forts :
Vaste living lumineux de 39 m²
4 belles chambres
2 salles de bains
3 WC
Nombreux espaces de rangement
Grenier isolé
2 garages

Extérieurs
Jardin de 125 m²
Terrasse agréable, parfaite pour vos moments de détente
Situation idéale

Proche immédiate de toutes les commodités (écoles, commerces, transports).

Infos & visites : 071 95 10 63
Toilettes 3
Grenier Oui
Terrasse Oui
Jardin Oui

Énergie

Performance énergétique 165 kWh/m²/an
Consommation totale 62170 kWh/m²/an
Vitrage Double vitrage

Surfaces

Séjour 39 m²
Jardin 125 m²
Surface construite 100 m²
Terrain 125 m²

Informations

Référence 2390
Status Nouveau