Studio à vendre à Courcelles – Idéal pour investissement

Situé à Courcelles, à proximité des commodités, transports et axes principaux, ce studio compact et fonctionnel représente une excellente opportunité d’investissement avec un rendement locatif attractif.

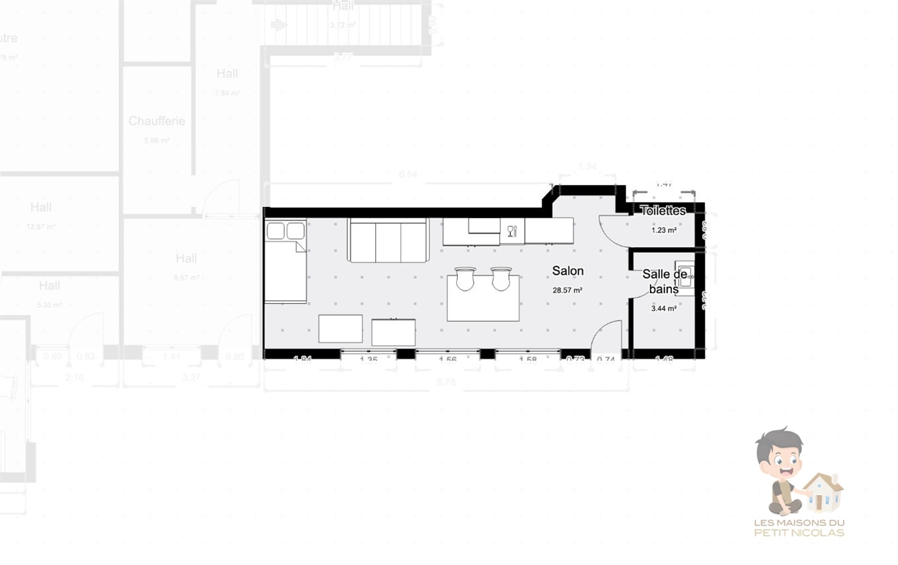
Caractéristiques :
Superficie habitable : 21 m²
1 salle de bains

Parfait pour un premier investissement ou pour compléter un portefeuille immobilier, ce bien est facile à louer et peu coûteux en entretien.

Infos & visites : 071 95 10 63
Toilette 1

Énergie

Performance énergétique 1082 kWh/m²/an
Consommation totale 42071 kWh/m²/an
Vitrage Double vitrage

Surfaces

Séjour 18 m²
Surface construite 25 m²
Terrain 25 m²

Raccordements

Électricité Oui
Eau Oui
Gaz Oui
Câble Oui
Téléphone Oui
Canalisation Oui

Informations

Référence 2383
Status Nouveau