Maison à rénover à Pironchamps – idéale pour investisseur ou premier achat

Cette maison à rénover offre un beau potentiel, que ce soit pour un investissement ou pour un premier achat.

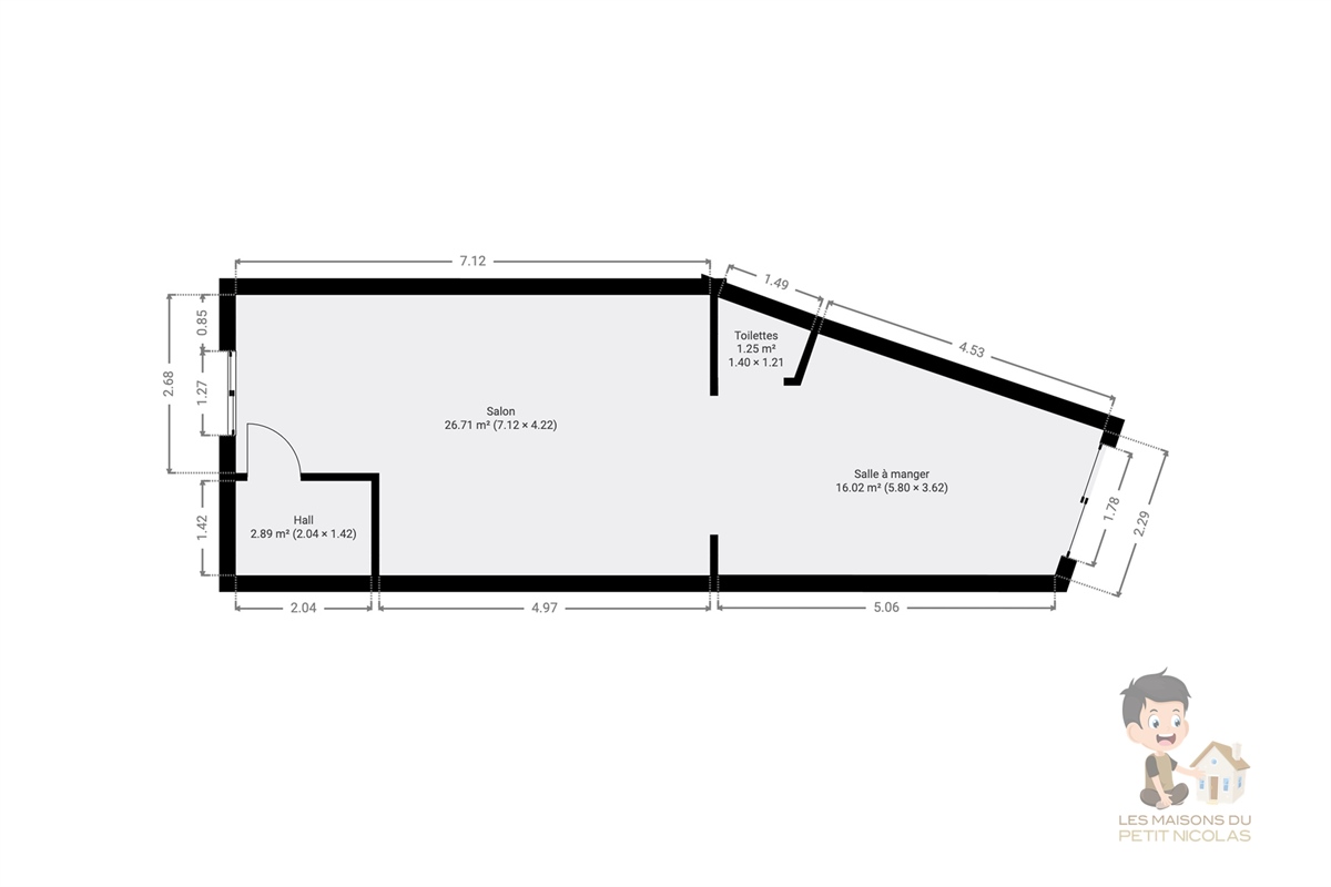
Elle se compose de :

124 m² habitables
Living de 27 m²
Terrasse de 20 m²
Jardin de 192 m²
Terrain total de 316 m²

Au niveau de l’agencement :

1 chambre au 1er étage avec la salle de bain
2 petites chambres dans le grenier aménagé

La maison est proche de toutes les commodités, ce qui en fait un bien pratique et attractif.

Infos et visites : 071 95 10 63
Toilette 1
Grenier Oui
Cave Oui
Terrasse Oui
Jardin Oui

Énergie

Performance énergétique 481 kWh/m²/an
Consommation totale 52803 kWh/m²/an
Vitrage Double vitrage

Surfaces

Séjour 27 m²
Jardin 192 m²
Terrasse 20 m²
Surface construite 62 m²
Terrain 316 m²

Raccordements

Électricité Oui
Eau Oui
Gaz Oui
Câble Oui
Téléphone Oui
Canalisation Oui

Informations

Référence 2569
Status Nouveau