http://newapi.omnicasa.com/1.13/OmnicasaService.svc/GetPropertyJson?json={%27ID%27:%272164%27,%20%27LanguageId%27:2,%20%27CustomerName%27:%27LESMAISONSDUPETITNICOLAS%27,%20%27CustomerPassword%27:%273b3D801CC821%27}

Rue Escarpée LA LOUVIÈRE

0 m2
Superficie
0
Chambre
0
Salle de bain
0
Parking
44.500 €

Description

Terrain à bâtir avec projet accepté !!

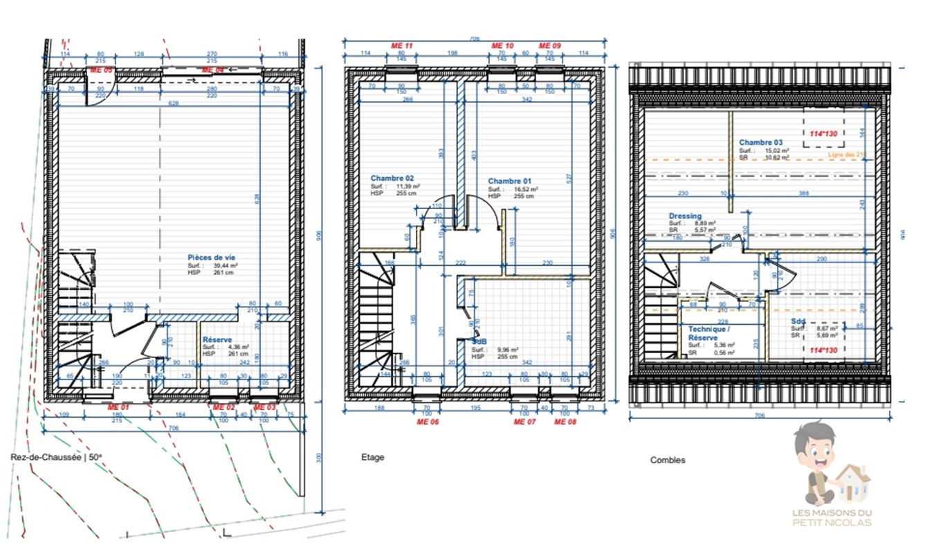
Terrain idéalement situé avec projet de construction 3 chambres déjà approuvé !
Maison moderne et lumineuse comprenant : vaste séjour de 40 m², 3 chambres spacieuses dont suite parentale avec dressing, 2 salles de bains et 2 espaces de rangement.

Projet validé = gain de temps, démarches simplifiées.
Possibilité de personnaliser les finitions selon vos envies.

Emplacement calme, proche des commodités et axes routiers.
Infos et visites : 071 95 10 63

Revenu Cadastral: 0 €

Énergie

  • Performance énergétique: kWh/m2/an

  • Consommation Tot.: kWh/m2/an

  • Émission CO₂ : 0 kg CO₂/m²

Composition

Surface

  • Sup. Terrain : 150 m²

Raccordement

  • Electrique
  • Eau
  • Gaz
  • Téléphone
  • Canalisation

Acheter, louer ou vendre

Prenez contact avec nos agents

Notre équipe est disponible en permanence pour répondre à vos questions, contactez nous via notre formulaire et un de nos collaborateur vous rappellera dans les plus brefs délais.

Nous contacter

Nous vous proposons des services à la hauteur de vos attentes pour votre bien immobilier !

Les maisons du petit Nicolas

Rue de gilly 81

6200 Chatelineau - Belgique

TVA : BE07.7898.3838

RC professionnelle et cautionnement via AXA Belgium SA - police n°730.390.160.

Institut professionnel des agents immobiliers, Rue du Luxembourg 16 B, 1000 Bruxelles.

GALANT Nadia de "Les Maisons du Petit Nicolas srl", agent immobilier agréée I.P.I. numéro 502.528

Soumis au code de déontologie de l'Institut professionnel des agents immobiliers.

Nos conditions générales & Politique de confidentialité.

Suivez-nous également sur facebook pour ne rien rater de nos actualités !

Facebook