http://newapi.omnicasa.com/1.13/OmnicasaService.svc/GetPropertyJson?json={%27ID%27:%271815%27,%20%27LanguageId%27:2,%20%27CustomerName%27:%27LESMAISONSDUPETITNICOLAS%27,%20%27CustomerPassword%27:%273b3D801CC821%27}

Rue du Korenbeek 20 MOLENBEEK-SAINT-JEAN

0 m2
Superficie
6
Chambres
4
Salles de bain
3
Parking
690.000 €

Description

Les Maisons du Petit Nicolas vous présente ce commerce situé à Molenbeek !

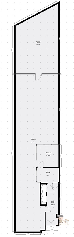
• Rez-de-chaussée :
Hall d'entrée (15m²), 2 Bureaux (14m² & 10m²), Surface commerciale (144m²), Surface commerciale (71m²)
• -1 : Un espace mixte (120m²), bureau (20m²), des pièces mixtes.
TOTAL : 420m²

Ce magnifique mastodonte dispose d'une mine d'or secrète : 3 grandes salles de sport dont une de crossfit, de fitness et une salle pour les cours collectifs. Possibilité d'avoir tout le matériel de fitness. Cet endroit est modulable et peut servir aussi d'entrepôt pour 20 voitures ou autres.

Confort :
panneaux photovoltaïques, système de caméras, volets électriques, compteurs individuels (eau et électricité), toiture en bon état, chauffage central au gaz

Le commerce est loué 6000€/mois.

Contactez-nous au 071 95 10 63 !

Revenu Cadastral: 4013 €

Énergie

  • Performance énergétique: kWh/m2/an

  • Consommation Tot.: 26165 kWh/m2/an

  • Émission CO₂ : 49 kg CO₂/m²

  • Double vitrage

Composition

  • 4 Toilettes
  • 1 Salle de douche
  • Cave
  • Terrasse

Surface

  • Séjour : 37 m²
  • Terrasse : 45 m²
  • Surface bureau : 24 m²

Raccordement

  • Electrique
  • Eau
  • Gaz
  • Câble
  • Téléphone
  • Canalisation

Acheter, louer ou vendre

Prenez contact avec nos agents

Notre équipe est disponible en permanence pour répondre à vos questions, contactez nous via notre formulaire et un de nos collaborateur vous rappellera dans les plus brefs délais.

Nous contacter

Nous vous proposons des services à la hauteur de vos attentes pour votre bien immobilier !

Les maisons du petit Nicolas

Rue de gilly 81

6200 Chatelineau - Belgique

TVA : BE07.7898.3838

RC professionnelle et cautionnement via AXA Belgium SA - police n°730.390.160.

Institut professionnel des agents immobiliers, Rue du Luxembourg 16 B, 1000 Bruxelles.

GALANT Nadia de "Les Maisons du Petit Nicolas srl", agent immobilier agréée I.P.I. numéro 502.528

Soumis au code de déontologie de l'Institut professionnel des agents immobiliers.

Nos conditions générales & Politique de confidentialité.

Suivez-nous également sur facebook pour ne rien rater de nos actualités !

Facebook