http://newapi.omnicasa.com/1.13/OmnicasaService.svc/GetPropertyJson?json={%27ID%27:%271282%27,%20%27LanguageId%27:2,%20%27CustomerName%27:%27LESMAISONSDUPETITNICOLAS%27,%20%27CustomerPassword%27:%273b3D801CC821%27}

RUE DU KORENBEEK 20 MOLENBEEK-SAINT-JEAN

743 m2
Superficie
6
Chambres
4
Salles de bain
3
Parking
1.590.000 €

Description

Les Maisons du Petit Nicolas vous présente cet immeuble de mixte situé à Molenbeek !

Idéal pour les maisons médicales ou centre sportif (hyrox, crossfit)

Composition de l'immeuble :
•-1 :
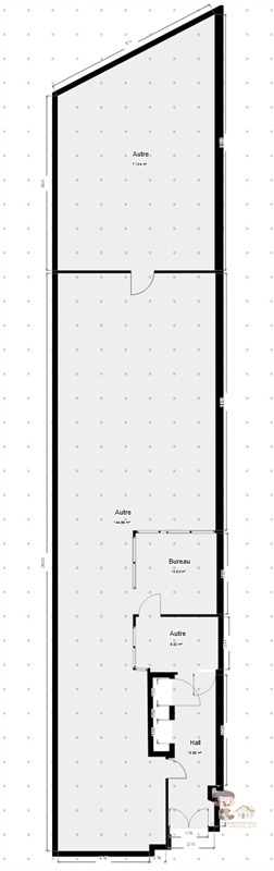
Pièce entre les caves et l'espace commercial (11m²), Bureau (13m²), 1 cave 3 pièces (13m²;8m²;5m²), Espace ouvert (130m²) & Salon (18m²).
TOTAL : 198m²

• Rez-de-chaussée :
Hall d'entrée (15m²), 2 Bureaux (14m² & 10m²), Surface commerciale (144m²), Surface commerciale (71m²)
TOTAL : 254m²

• 1er étage :
Hall d'entrée (7m²), Salon/salle à manger (37m²), Cuisine (14m²), Hall de nuit (4m²), Toilette, Salle de bains (5m²), 2 Chambre à coucher (12m² & 17m²)
TOTAL : 97m²

• 2ème étage :
Hall d'entrée (7m²), Salon/salle à manger (37m²), Cuisine (14m²), Hall de nuit (4m²), Toilette, Salle de bains (5m²), 2 Chambre à coucher (12m² & 17m²)
TOTAL : 97m²

• 3ème étage :
Hall d'entrée (7m²), Salon/salle à manger (37m²), Cuisine (14m²), Hall de nuit (4m²), Toilette, Salle de bains (5m²), 2 Chambre à coucher (12m² & 17m²)
TOTAL : 97m²

Cet immeuble dispose de : 3 grandes salles de sport dont une de crossfit, de fitness et une salle pour les cours collectifs. Cet endroit est modulable et peut servir aussi d'entrepôt pour 20 voitures ou autres.

Confort :
panneaux photovoltaïques, système de caméras, volets électriques, portes blindées, compteurs individuels (eau et électricité), toiture en bon état, chauffage central au gaz

Contactez-nous au 071 95 10 63 !

Revenu Cadastral: 4013 €

Énergie

  • Performance énergétique: 247 kWh/m2/an

  • Consommation Tot.: 26165 kWh/m2/an

  • Émission CO₂ : 49 kg CO₂/m²

  • Double vitrage

Composition

  • 4 Toilettes
  • 1 Salle de douche
  • Cave
  • Terrasse

Surface

  • Séjour : 37 m²
  • Terrasse : 45 m²
  • Surface bureau : 24 m²

Raccordement

  • Electrique
  • Eau
  • Gaz
  • Câble
  • Téléphone
  • Canalisation

Acheter, louer ou vendre

Prenez contact avec nos agents

Notre équipe est disponible en permanence pour répondre à vos questions, contactez nous via notre formulaire et un de nos collaborateur vous rappellera dans les plus brefs délais.

Nous contacter

Nous vous proposons des services à la hauteur de vos attentes pour votre bien immobilier !

Les maisons du petit Nicolas

Rue de gilly 81

6200 Chatelineau - Belgique

TVA : BE07.7898.3838

RC professionnelle et cautionnement via AXA Belgium SA - police n°730.390.160.

Institut professionnel des agents immobiliers, Rue du Luxembourg 16 B, 1000 Bruxelles.

GALANT Nadia de "Les Maisons du Petit Nicolas srl", agent immobilier agréée I.P.I. numéro 502.528

Soumis au code de déontologie de l'Institut professionnel des agents immobiliers.

Nos conditions générales & Politique de confidentialité.

Suivez-nous également sur facebook pour ne rien rater de nos actualités !

Facebook